Fastigheten Betongen 2 i Näsby industriområde, Kristianstad, är en industrifastighet om totalt ca 4 052 kvm uthyrbar yta. Den består av två byggnader uppförda 1964 och 1967, som därefter löpande renoverats. Tre lagertält som finns på platsen ingår inte i försäljningen.
Nuvarande ägare har bedrivit produktion här sedan byggnaderna uppfördes men flyttar under hösten 2026, varefter lokalerna tomställs. Säljaren kan tänka sig att teckna ett hyresavtal fram till dess.
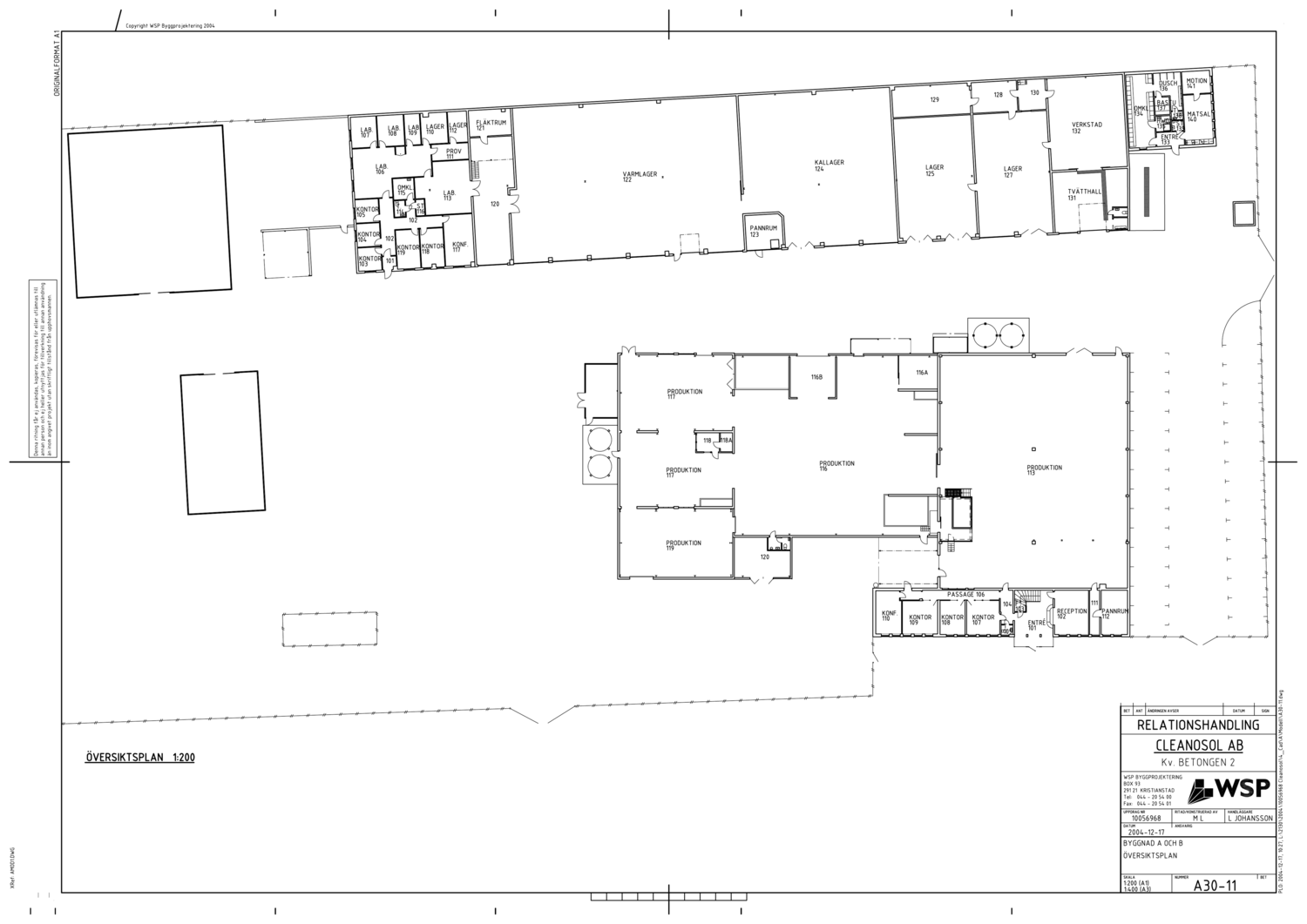
Huvudbyggnaden om ca 2 143 kvm innehåller kontor, personalytor, produktion och lager.
Sidobyggnaden om ca 1 909 kvm rymmer verkstad, lager, tvätthall, laboratorium och personalytor.
Båda byggnaderna har platta på mark, stål/tegel/betongstomme, 3-glasfönster och tak av högprofilplåt med papp. Invändigt varierar ytskikten mellan kontorsstandard och mer robust industristandard.
Fastigheten är ansluten till kommunalt VA, fjärrvärme, har mekanisk ventilation med återvinning, komfortkyla, fiber, oljeavskiljare och 2 elbilsladdare. Portar är besiktigade takskjutportar och vikportar.
Taxeringsvärdet uppgår till totalt 17 784 000 kr och fastigheten omfattas av detaljplan för industri.
Efter hösten 2026 är fastigheten redo för ny användare och kan även delas upp i flera mindre lokaler, exempelvis för lagerverksamhet.
Läget erbjuder god tillgänglighet till E22 och centrala Kristianstad.
Fastigheten säljs i bolagsform.
Välkommen att kontakta Sundsstaden för fullständig promemoria och ytterligare information.
